
Contact us for a quotation
OUTLET HEIGHT |
5 T/HR |
20T/HR |
60T/HR |
80T/HR |
120 T/HR |
| 6 Leg - 19m | |||||
|
7 Leg - 22m |
|||||
|
9 Leg - 28m |

ANY OTHER HEIGHTS AVAILABLE |
![]() |
|
|
|
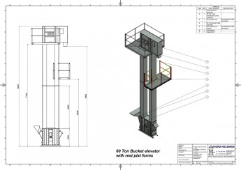
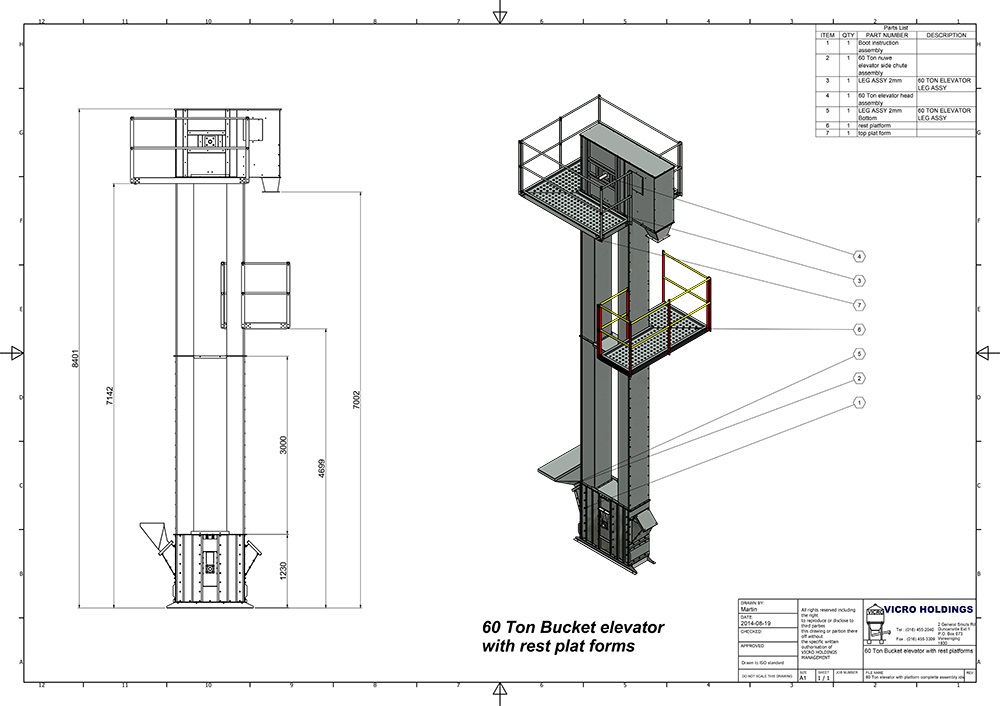
Support structure recommended for elevators exceeding 30 meter | |
FEATURES |
||
|
|
Manufactured from Z275 Pre-galvanised material | |
|
|
Class 630 PVC solid woven belts | |
|
|
Mild steel buckets | |
|
|
DODGE gearbox with electric motors, pulleys & Vbelts | |
DOWNPIPES AVAILABLE |
||
|
|
205mm up to 80 ton per hour | |
|
|
240mm from 100 ton per hour | |
|
|
Bennox liners optional | |

ELEVATOR PRICE ELEVATOR PRICE |
|||
INCLUDES |
EXCLUDES |
||
|
|
Installation |
|
Delivery |
|
|
Gearbox & Motor |
|
Electrical reticulation |
|
|
1 x Service Platform |
|
Diverters & Downpipes |
|
|
1 x Worksplatform |
|
Resting / Step-of platforms |
|
|
Anchoring cables |
|
Anchor poles & structures (if required) |




